Byt k prodeji, Budapešť IX obvod

Hlavní stránka » Byt k prodeji, Budapešť IX obvod » Byt k prodeji, Budapešť IX obvod

97 500 000 Ft

€253 986
Údaje inzerenta

Oravecz Imre

Psaní zprávy
Zpráva musí obsahovat minimálně 10 znaků.
Popis

Přeložený text

Originální text
Fiatalos, nagy teraszos, amerikai konyhás lakás a Haller Park mellett – remek választás első otthonnak

A 2000-es években épült, modern társasház 5. emeletén kínálunk eladásra egy világos, nyugati tájolású, nagy teraszos otthont, amely tökéletesen megfelel az OtthonStart program feltételeinek is.

Lokáció & közlekedés:
A ház közvetlen kijárattal rendelkezik a Haller Parkra, ahol naponta élvezheted a zöld környezetet. A társasház előtt és mellett villamosmegálló található, a metró és a Lurdy Ház pedig mindössze pár perc sétára van – így a város bármely pontja gyorsan elérhető.

A társasház szolgáltatásai:

Tágas, kényelmes lift
Portaszolgálat
Biciklitároló
Számzáras kapunyitó és kaputelefon
Biztonsági bejárati ajtó a lakásban

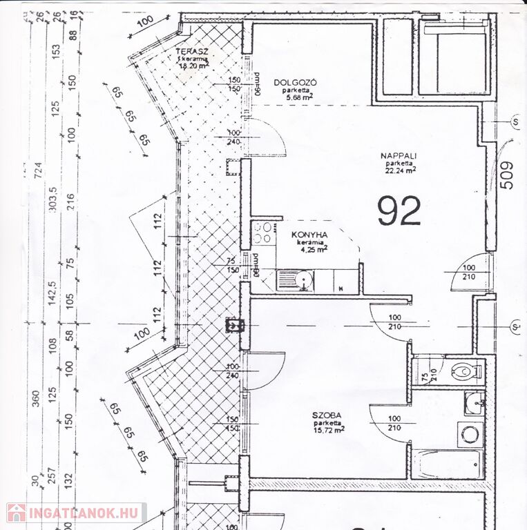
A lakás elrendezése:

Előtér
Tágas, napfényes amerikai konyhás nappali
Nagy hálószoba, közvetlen teraszkapcsolattal
Külön fürdőszoba és WC
A nappali mellett egy leválasztható dolgozó-/hálórész, ami tökéletes home office-hoz

A lakás teljes hosszában futó nagy terasz igazi extra: grillezéshez, beszélgetésekhez és pihenéshez kiváló. A belső kertre néz, két napellenző gondoskodik a kellemes árnyékról.

Felszereltség:

Légkondicionáló a nappaliban és a hálóban
Teljesen gépesített, egyedi tervezésű konyha (hűtő, mosogatógép, főzőlap, sütő, mikró)
Internet és kábel TV bekötve
Fürdőben mosógép

Parkolás:
Teremgarázsban bérelhető vagy vásárolható parkolóhely. A környéken fizető övezet található.

údaje Byt

5. poschodí

Cihla

Z centrálního rozváděče s individuálním elektroměrem

Dobrý

Není zadáno

11-20 let starý

62 Čtvereční metr

Není zadáno

Není zadáno

Zařízený

s výhledem do zahrady