Byt k prodeji, Budapešť XII obvod

Hlavní stránka » Byt k prodeji, Budapešť XII obvod » Byt k prodeji, Budapešť XII obvod

116 000 000 Ft

€306 481
Údaje inzerenta

Dodici Quartiere Kft.

Psaní zprávy
Zpráva musí obsahovat minimálně 10 znaků.
Popis

Přeložený text

Originální text
Kizárólag Irodánk kínálatában!

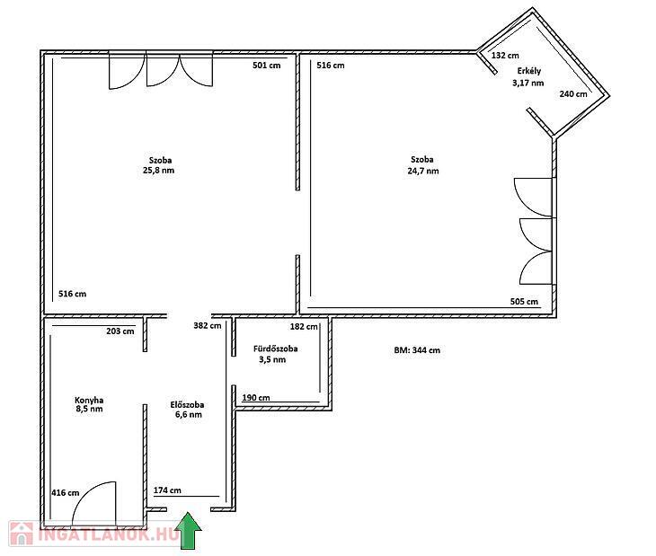
Eladó a XII. kerületben, a Kléh István utcában, egy jó állapotú társasház első emeletén, egy közepes állapotú, 66 nm + 3 nm erkélyes, 2 szobás, világos, panorámás, klímás lakás.

A lakásban a külső nyílászárók és a fűtőtestek cseréje megtörtént.

A társasház homlokzat és lépcsőház felújítása 1990-ben történt meg.

A közösköltség 17.000 Ft, mely tartalmazza az általános költségeket és a felújítási alapot.

Tartozik a lakáshoz egy közös tároló is.

Tömegközlekedés szempontjából 1-2 perc sétatávolságra buszok és villamosok járnak.



Kérdés esetén keressenek minket bizalommal!



Irodánk ingyenes hiteltanácsadással áll ügyfeleink rendelkezésére.

VEVŐINK RÉSZÉRE A KÖZVETÍTÉS DÍJMENTES.

A hirdetésben szereplő adatok tájékoztató jellegűek.

údaje Byt

4. poschodí

Není zadáno

S cirkulačním okruhem

Průměrný

Není zadáno

Není zadáno

66 Čtvereční metr

Není zadáno

Není zadáno

Není zadáno

Není zadáno