Byt k prodeji, Budapešť XVI obvod

Hlavní stránka » Byt k prodeji, Budapešť XVI obvod » Byt k prodeji, Budapešť XVI obvod

85 000 000 Ft

€221 423
Údaje inzerenta

Kertvárosi Ingatlan Kft.

Psaní zprávy
Zpráva musí obsahovat minimálně 10 znaků.
Popis

Přeložený text

Originální text
XVI. KERÜLETBEN: MÁTYÁSFÖLDÖN, KÖZEPES ÁLLAPOTÚ, 68 M2, 3 SZOBÁS, I. EMELETI, TÁRSASHÁZI LAKÁS!



AZ ÉPÜLET JELLEMZŐI:

Az 1970-ben épült, 4 emeletes, 10 lakásos, társasház.

A LAKÁS JELLEMZŐI:

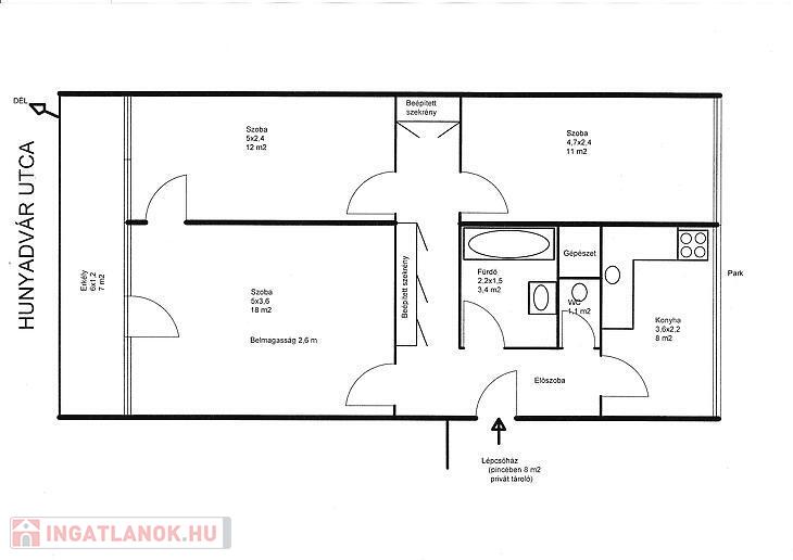
Eladásra kínálunk egy kivételes adottságokkal rendelkező, tágas és világos lakást, amely három külön nyíló szobájával, kényelmes közlekedőjével és praktikus elrendezésével garantálja a mindennapi komfortot.

A lakás külön helyiségben található fürdőszobával és WC-vel rendelkezik, a közlekedőben elhelyezett beépített szekrénysor pedig kiváló tárolási lehetőséget biztosít. A 7 m²-es erkély kellemes kültéri pihenőteret teremt, míg a 8 m²-es pincehelyiség további praktikumot ad az ingatlannak.

Az otthon állapota közepes, így új tulajdonosa saját ízlése szerint alakíthatja remek alapot nyújt egy igényes felújításhoz. A nyílászárók eredetiek, redőnnyel felszerelve, a kellemes hőérzetről pedig klímaberendezés gondoskodik. A fűtés házközponti, ami gazdaságos és egyenletes meleget biztosít a hidegebb hónapokban.

A parkolás a ház előtt kényelmesen megoldható.



FINANSZÍROZÁS:

A lakás banki finanszírozással is megvásárolható, melyben irodánk ingyenes tanácsadással áll rendelkezésükre!



A hirdetésben szereplő adatok tájékoztató jellegűek.

Várjuk hívását munkanapokon 09:00-18:00 óra között.

Amennyiben eladná saját ingatlanát, több mint 10 éve működő, kifejezetten a kerületre szakosodott irodánktól, INGYENES ÉRTÉKBECSLÉST kérhet.

VEVŐINK RÉSZÉRE A KÖZVETÍTÉS DÍJTALAN!!

A hirdetésben szereplő adatok tájékoztató jellegűek.



údaje Byt

Není zadáno

Není zadáno

Z domovního rozváděče

Průměrný

Není zadáno

Není zadáno

68 Čtvereční metr

Není zadáno

Není zadáno

Není zadáno

Není zadáno