Byt k prodeji, Cegléd

Hlavní stránka » Byt k prodeji, Cegléd » Byt k prodeji, Cegléd

68 000 000 Ft

€173 430
Údaje inzerenta

Horváthné Monori Rita

Psaní zprávy
Zpráva musí obsahovat minimálně 10 znaků.
Popis

Přeložený text

Originální text

Új építésű lakások eladók Cegléden – már csak két lakás maradt!

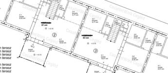
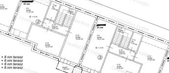
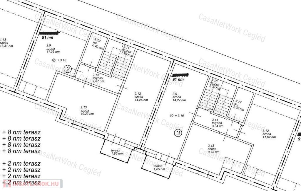
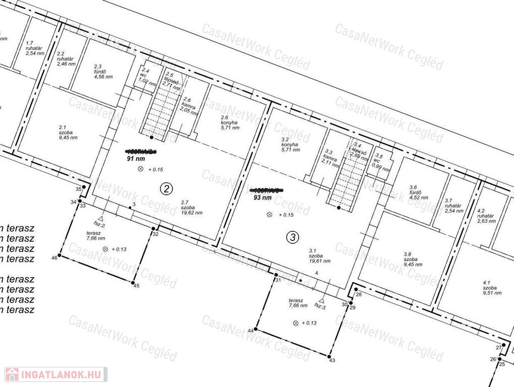
A CasaNetwork Cegléd kínálatában elérhető egy 4 lakásos, modern társasház, amelyből már csak a 2-es és 3-as számú lakás eladó (azonosító: 174602147). A hirdetésben szereplő lakás a 3 lakás.

Az ingatlan 91 m² alapterületű, sorházi jellegű épület része, zárt udvarban helyezkedik el, saját kerttel és parkolóhellyel.
A lakás idei átadású, önálló helyrajzi számmal rendelkezik, valamint fix 3% hitelre OSP konstrukcióra is alkalmas.

A lakások kétszintesek, tetőtér-beépítésesek és tégla építésűek, korszerű anyagokkal, modern technológiával és kiváló hőszigeteléssel készülnek. A tágas, napfényes helyiségek és az átgondolt belső elrendezés kényelmes, otthonos életteret biztosítanak.

A társasház Cegléd egyik kedvelt, csendes, családbarát környékén található. A közelben bevásárlási lehetőségek, iskola, óvoda és buszmegálló is megtalálhatók, így a mindennapi élethez szükséges minden karnyújtásnyira van.

Ezek a lakások ideális választást jelentenek családoknak és pároknak, akik minőségi, új építésű otthont keresnek Cegléden, zárt udvarban, saját kerttel és parkolóval.

A földszinten egy világos nappali, konyha, fürdőszoba, külön WC, szoba és tároló kapott helyet, valamint egy 7,6 m²-es terasz is tartozik a lakáshoz, amely közvetlen kapcsolatot biztosít a kerttel. Az emeleten egy közlekedő, három külön nyíló szoba, egy WC és egy 1,8 m²-es erkély található.

Az ingatlan A+ energetikai besorolású, tégla falazattal, beton alappal és hungarocell hőszigeteléssel épül. A belmagasság 2,7 méter, a nyílászárók korszerű, hő- és hangszigetelt műanyag ablakok, a tetőtérben pedig VELUX tetőablakok kerülnek beépítésre. A fűtést és a hűtést kondenzációs gázkazán, padlófűtés, valamint hőszivattyú és hűtő-fűtő klíma biztosítja, továbbá H tarifa is elérhető.

A parkolás az udvarban, saját, ingyenes parkolóhelyen megoldott. 

A lakások CSOK és banki hitel igénylésére is alkalmasak, bővebb tájékoztatás személyesen kérhető. Az alaprajzok és további információk előzetes időpont-egyeztetést követően a CasaNetwork ceglédi irodájában megtekinthetők.

Amennyiben a 174602147-es számú, új építésű társasházi tégla lakás vagy bármely más kínálatunkban szereplő ingatlan felkeltette érdeklődését, hívjon bizalommal. Kollégánk díjmentes, banksemleges hitelügyintézéssel áll rendelkezésére.

CasaNetwork – Ingatlanban otthon vagyunk!

údaje Byt

Přízemí

Cihla

S cirkulačním okruhem

Dobrý

Není zadáno

Není zadáno

91 Čtvereční metr

Není zadáno

Není zadáno

Není zadáno

Není zadáno