Přeložený text
Originální text
KERTVÁROSI KÖRNYEZET!KULCSRAKÉSZ LAKÁSOK AZ ÖN KÉNYELMÉRE TERVEZVE!
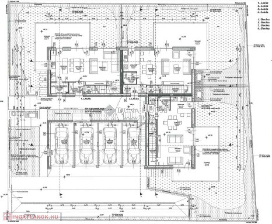
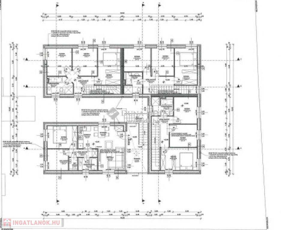
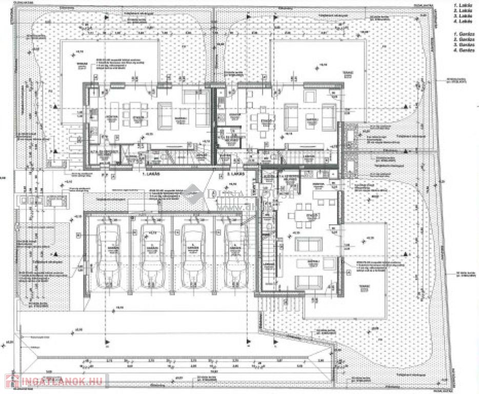
Hódmezővásárhely, Új-Kishomok kertvárosias részén Török Csongor terve alapján készült projekt épül:- 4 lakás (3 belső kétszintes )- 4 garázs kulcsrakész állapotban kerülnek átadásra. A modern lakások terasszal és saját kertrésszel rendelkeznek. Néhány műszaki jellemző:- 20 cm-es hőszigetelés- hármas üvegezésű nyílászárók, mely biztosítja a kiváló hőszigetelést- fő falazat és a födém földrengésbiztos vasbeton szerkezet- komplett fűtésrendszer (padlófűtés energiatakarékos hőszivattyúval, mely megújuló energiának minősül) MINDEN TOVÁBBI RÉSZLETTEL, VALAMINT MŰSZAKI ALAPRAJZZAL ÉS SZEMÉLYESMEGTEKINTÉSSEL KAPCSOLATBAN VÁROM HÍVÁSÁT!FORDULJON HOZZÁM BIZALOMMAL!
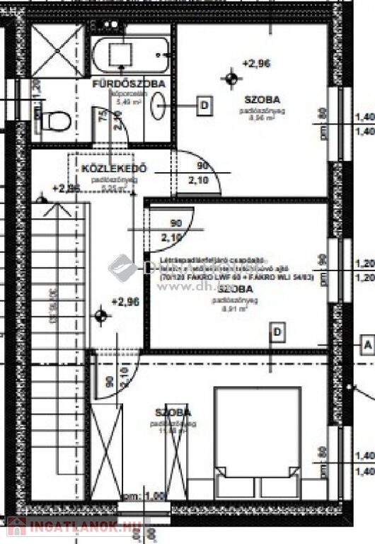
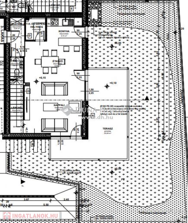
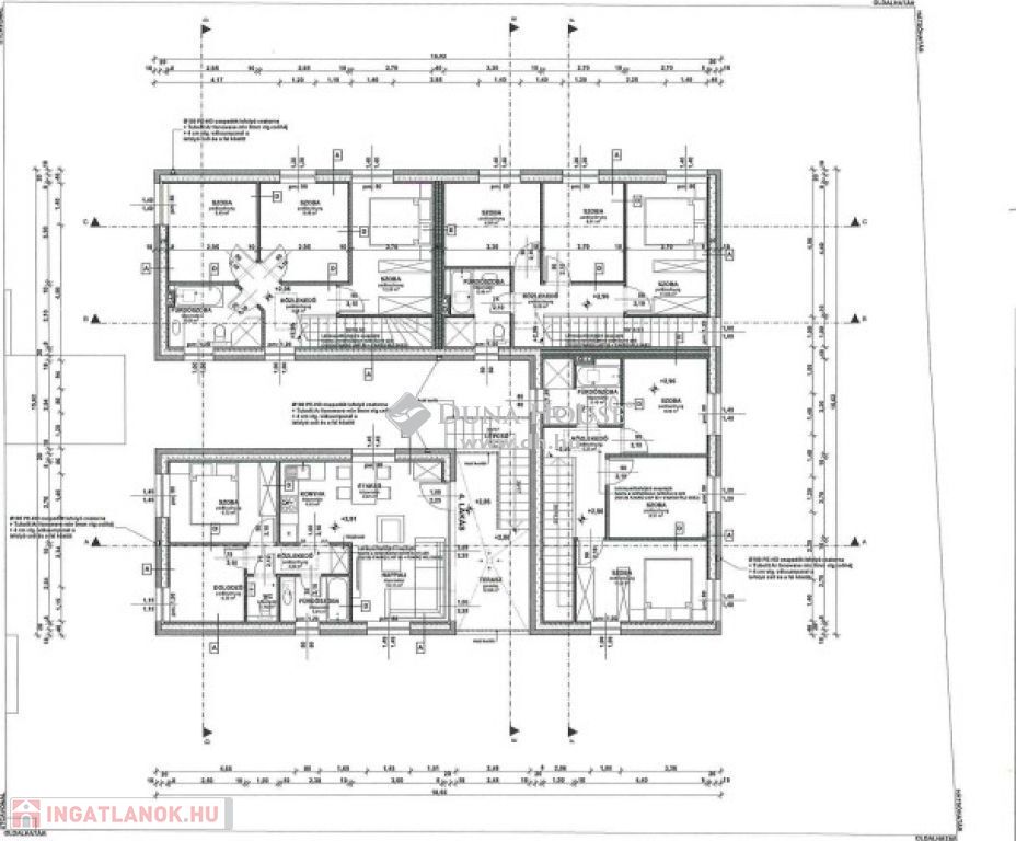
.A 3.számú lakás 87,66 m2.Térfelosztása az alábbi:Földszint: nappali, konyha-étkező, háztartási helyiség, WC, előtér,Emelet: 3 külön bejáratú szoba, fürdő és közlekedő. A környezettel való kapcsolatot a 24,59 m2-es terasz és a kizárólagos használatú saját kert biztosítja.
Össz.terület: 99,96 m2 ( 1/2 terasszal)- padlófűtés energiatakarékos hőszivattyúval- Aereco szellőző rendszer- beépített motoros alumínium redőny- hideg- és meleg burkolat , szaniterek
Gépkocsi számára a 14,54 m2-es garázs áll a rendelkezésre, melynek ára 9.900.000,- Ft.
Néhány műszaki jellemző:- 20 cm-es hőszigetelés- hármas üvegezésű nyílászárók, mely biztosítja a kiváló hőszigetelést- fő falazat és a födém földrengésbiztos vasbeton szerkezet- komplett fűtésrendszer (padlófűtés energiatakarékos hőszivattyúval, mely megújuló energiának minősül) MINDEN TOVÁBBI RÉSZLETTEL, VALAMINT MŰSZAKI ALAPRAJZZAL ÉS SZEMÉLYESMEGTEKINTÉSSEL KAPCSOLATBAN VÁROM HÍVÁSÁT!FORDULJON HOZZÁM BIZALOMMAL!
Tisztelt ingatlantulajdonos !
Slivkáné Zsiros Éva vagyok, a Duna House Oroszlán utcai irodájában dolgozom. Ingatlanok eladásában, vételében, bérbeadásában, értékbecslésben, hitelnyújtásban, CSOK, babaváró támogatásban, energetikai tanúsítvány készítésében tudok segítséget nyújtani. Forduljon hozzám bizalommal.
Přízemí
Cihla
Není zadáno
Ve výstavbě
Není zadáno
Novostavba
99 Čtvereční metr
Není zadáno
Není zadáno
Není zadáno
Není zadáno
Vyhledávejte jednoduše dům, byt, kancelář, garáž a pozemek nebo jakoukoli nemovitost v naší databázi!
Nemovitost.hu člen Real Estate Group.
Nemovitosti k prodeji v Maďarsku - Nemovitost.hu © 2025 Všechna práva vyhrazena