Byt k prodeji, Kaposvár

Hlavní stránka » Byt k prodeji, Kaposvár » Byt k prodeji, Kaposvár

116 000 000 Ft

€303 776
Údaje inzerenta

Boldizsár Balázs

Psaní zprávy
Zpráva musí obsahovat minimálně 10 znaků.
Popis

Přeložený text

Originální text
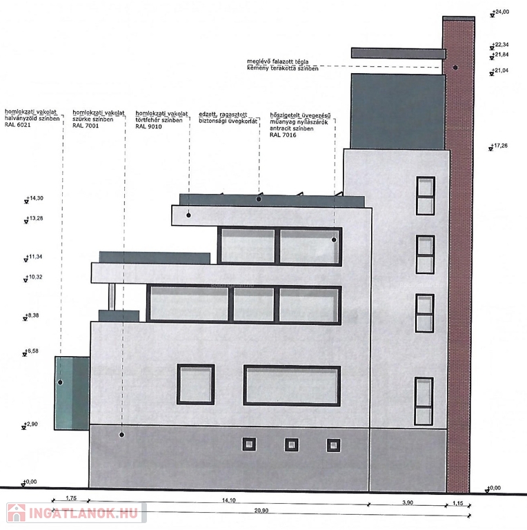
Kaposváron a belváros közvetlen közelében található területre tervezett projekt - 8 lakásos társasház, további 2 irodával és 9 garázzsal, amelyek teljes alapterülete 1.305,95 m2 - építési engedéllyel, tervrajzokkal együtt eladó. A megadott ár nettóban értendő! A tulajdonos esetleg cserét is beszámít, illetve nyitott az épületben kialakításra kerülő lakás(ok)-ért cserébe átadni a projketet!
Amennyiben az ingatlan felkeltette az érdeklődését, kérem hivatkozzon a 12. számú ajánlatra! Irodánk címe: 7400 Kaposvár Irányi D. u. 9.

údaje Byt

Není zadáno

Cihla

Geotermický

Není zadáno

Není zadáno

Není zadáno

1 306 Čtvereční metr

Není zadáno

Není zadáno

Není zadáno

Není zadáno

Obrázky