Přeložený text
Originální text
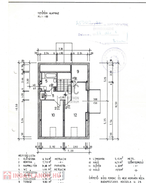
Debrecenben a kedvelt Biharikert városrészben, eladóvá vált, 107 nm-es tetőteres ház.
Ideális választás azok számára , akik szeretnék megteremteni családjuk otthonát egy csendes, mégis élénk környezetben.
Masszív beton alapra épült 1989 -ben. Falazatának, gázcirkó fűtésének és a födém szigetelésének köszönhetően kedvező fenntartási költségű. Nyílászárói fából vannak, hőszigetelt üvegezéssel, redőnnyel ellátva. Tágas nappalival és kettő kényelmes szobával rendelkezik, amelyek mind a családi együttlétek, mind a pihenés tökéletes helyszínéül szolgálnak. A nappali méretének és adottságainak köszönhetően, az ingatlan könnyen 4 szobássá alakítható! A két fürdőszoba kényelmet biztosít a mindennapok során, így a reggeli készülődés nem jelenthet gondot a családtagok számára. A közel 10 nm-es terasz ideális helyszín a reggeli kávézásra vagy a naplemente megcsodálására. A 648 négyzetméteres telek bőséges helyet kínál a szabadban való tevékenységekhez, legyen szó gyerekek játékáról vagy baráti összejövetelekről. A kertben fúrt kút biztosítja a növények öntözését . Az udvarra akár több autó beállása is megoldható a lemez garázson kívül. Az ingatlan lakható állapotú, de a leendő tulajdonos saját ízlésére formálhatja a teret, hogy az számára is otthonná váljon. A környék ellátottsága kiváló, számos bolt, iskola és egészségügyi intézmény található a közelben, amelyek megkönnyítik a mindennapi életet. A Biharikert városrész biztonságos, csendes utcái ideálisak a gyermekek számára, akik szabadon játszhatnak a szomszédságban. A közlekedési lehetőségek is kedvezőek, hiszen a város tömegközlekedési hálózata könnyen elérhető, így a Debrecen belvárosába történő bejutás is gyors és egyszerű. Ez a ház nem csupán egy ingatlan, hanem a családi élet színtere is lehet, ahol a szép emlékek születnek...
Csok + és 3%-os hitelre is alkalmas!
További felvilágosításért várom megkeresését!
Debrecen, eladó, családi ház, önálló, 3 szoba, gázfűtés, Biharikert
107 Čtvereční metr
648 Čtvereční metr
Průměrný
Rodinný dům
Není zadáno
S cirkulačním okruhem
Není zadáno
Není zadáno!
Není zadáno!
Není zadáno
Není zadáno
Není zadáno
Vyhledávejte jednoduše dům, byt, kancelář, garáž a pozemek nebo jakoukoli nemovitost v naší databázi!
Nemovitost.hu člen Real Estate Group.
Nemovitosti k prodeji v Maďarsku - Nemovitost.hu © 2026 Všechna práva vyhrazena