Dům k prodeji, Kecskemét

Hlavní stránka » Dům k prodeji, Kecskemét » Dům k prodeji, Kecskemét

80 000 000 Ft

€203 770
Údaje inzerenta

Kocsis Zsuzsanna

Psaní zprávy
Zpráva musí obsahovat minimálně 10 znaků.
Popis

Přeložený text

Originální text
​Kecskeméten az egész család számára tökéletes kényelmet biztosító, remek elrendezésű, új építésű családi ház csak önre vár.


A 4 szoba minden családtagnak biztosít egy kis elvonulási lehetőséget.
A kényelmes, tágas nappaliból és a hálószobából is a fedett teraszra léphet ki.

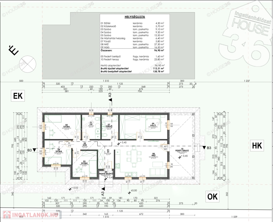
- 96,9 m2 nettó lakótér
+ 1,6 m2 fedett belépő
+ 24,4 m2 fedett terasz
-138,78 m2 bruttó lakótér
- hőszivattyú
- padlófűtés
- 4 szoba
- gardrób
- nagy nappali konyhával,étkezővel
- háztartási helyiség
- plusz külön wc
- energia takarékos
- 2026 07. átadás

Választható burkolatok, színek, nyílászárók, szaniterek.
Hívjon.Nézzük meg a minta házakat akár hétvégén is.

A HOUSE36 kínálatában lévő összes ingatlannal kapcsolatban tudok felvilágosítást nyújtani.
Szolgáltatásaink kereső ügyfeleink részére ingyenesek.
Az iroda legfrissebb, aktuális kínálatát a HOUSE36 saját weboldalán találja!

údaje Dům

96 Čtvereční metr

575 Čtvereční metr

Ve výstavbě

Rodinný dům

Z lehkých konstrukcí

Jiný

Není zadáno

Není zadáno!

Novostavba

Není zadáno

Přízemní

Není zadáno

Mapa
Obrázky