Dům k prodeji, Mátraszőlős

Hlavní stránka » Dům k prodeji, Mátraszőlős » Dům k prodeji, Mátraszőlős

18 300 000 Ft

€46 673
Údaje inzerenta

Butkai Ottó

Psaní zprávy
Zpráva musí obsahovat minimálně 10 znaků.
Popis

Přeložený text
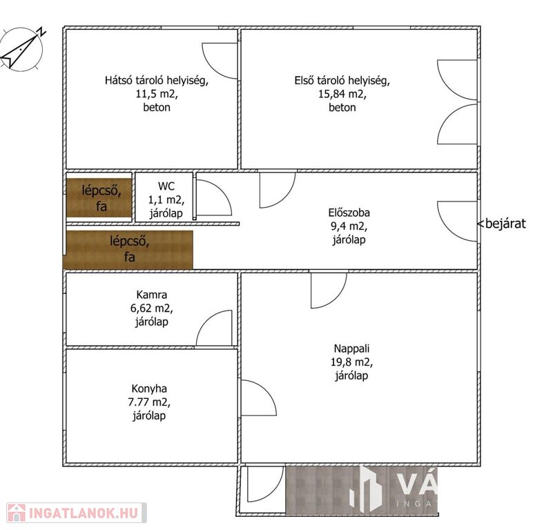
Vedle Pásztó, v Mátraszőlős, se prodává velký rodinný dům ve výborném stavu! Dům se nachází v příjemné ulici s malým provozem, v krásném, klidném prostředí. Součástí je velká hospodářská budova s garážemi, a také velký pozemek rozdělený na dvě části, z nichž první část se pohodlně vjíždí autem, a zadní část tvoří velká, obdělávaná zahrada. Na dvoře se nachází studna s vysokou výtěžností, jejíž využití zajišťuje vodní čerpadlo v domě. Nemovitost je v dobrém stavu, v současné době obývaná a udržovaná. V současné dispozici se nacházejí čtyři pokoje, kuchyň, spíž, koupelna a samostatná toaleta. V obytném patře se nacházejí další dva pokoje, které v současné době slouží pouze k úschově věcí, ale dají se snadno přestavět na pohodlné pokoje. Ze schodiště vede pohodlné schodiště na půdu, takže je možné ho také instalovat. Pod domem se nachází velký, suchý sklep, kde se nachází kotel zajišťující ústřední topení a vodní čerpadlo. Vedle domu se nachází také velká hospodářská budova, která má také suterén. Tato nemovitost je nejen prostorná, ale také poskytuje svému majiteli veškeré pohodlí. Má třífázové napájení a také přípojky na vodu a kanalizaci. Plynová přípojka je ve dvoře, takže její připojení je snadno řešitelné. Ulice je také vybavena optickým internetem a kabelovou televizí. Autobusová doprava je vynikající, každou hodinu jezdí autobus do Pásztó, každé dvě hodiny do Salgótarjánu a na začátku Mátraszele je zastávka dálkového autobusu, odkud každou hodinu jezdí pravidelný autobus do Budapešti. Tento vynikající dům je již pro současné obyvatele příliš velký, a proto se rozhodli jej prodat. Nyní jej lze získat za mimořádně příznivou cenu, a to za pouhých 18,3 milionu HUF! Mátraszőlős je osada s významnou historickou minulostí, která se nachází v bezprostřední blízkosti Pásztó a její první písemná zmínka pochází z roku 1229, za doby Bély IV. Kromě památek je vesnice cenná i díky krásnému přírodnímu prostředí. Pokud jsem ve vás vzbudil zájem, zavolejte nám na číslo +36 70 423 1304! (Pro více fotografií a informací volejte!)

Originální text
Pásztó mellett, Mátraszőlősön, kitűnő állapotú, nagy családiház eladó! A ház kis forgalmú, kellemes utcában, szép, békés környezetben fekszik. Tartozik hozzá egy nagy alapterületű, garázsokat is magába foglaló melléképület, valamint egy nagy, két részre osztott telek, aminek az első részébe kényelmesen be lehet hajtani autóval, a hátsó része pedig egy nagy, megművelt kert. Bőséges hozamú ásott kút van az udvarban, aminek a felhasználását a házban hidrofor biztosítja.
Az ingatlan szép állapotú, jelenleg is lakott, karbantartott. Jelenlegi kialakításában négy szoba, konyha, kamra, fürdőszoba és külön vécé található. A lakószinten további két helyiség is van, amit jelenleg csak tárolásra használnak, de könnyedén kényelmes szobává alakíthatóak.
A padlásra kényelmes lépcső vezet a lépcsőházból, ezért annak beépítése is lehetséges.
A ház alatt nagy, száraz pince van, itt helyezkedik el a központi fűtést biztosító kazán, és a hidrofor.
A ház mellett egy nagy melléképület is található, ami szintén alápincézett.
Ez az ingatlan nem csak tágas, de minden kényelmet biztosít a tulajdonosának. Háromfázisú árambetáplálással, továbbá víz, és szennyvízbekötéssel is rendelkezik.
A gázcsonk az udvarban van, így annak bekötése is könnyen megoldható. Optikai internettel, és kábeltelevízióval is ellátott az utca.
Az autóbusz-közlekedés kitűnő, óránként Pásztóra, két óránkét Salgótarjánba jár a busz, Mátraszele elején pedig a távolsági buszmegálló van, ahonnan óránként megy Budapestre menetrend szerinti járat.
Ez a kitűnő ház már túl nagy a jelenlegi lakóknak, ezért döntöttek az eladása mellett. Most rendkívül kedvező áron, mindössze 18,3 MFt-ért megszerezhető!

Mátraszőlős Pásztó közvetlen szomszédságában található, jelentős történelmi múlttal bíró település, első írásos említése, már IV.Béla idejében, 1229-ben megtörtént. Műemlékei mellett gyönyörű természeti környezete is értékessé teszik a falut.

Ha felkeltettem az érdeklődését hívjon bizalommal a +36 70 423 1304-es telefonszámon!
(További képekért és információkért kérem hívjon!)

údaje Dům

147 Čtvereční metr

1 376 Čtvereční metr

Obnovený

Rodinný dům

Cihla

Kachlová kamna

Není zadáno

Není zadáno!

Není zadáno!

Není zadáno

Není zadáno

Není zadáno