Dům k prodeji, Szentendre

Hlavní stránka » Dům k prodeji, Szentendre » Dům k prodeji, Szentendre

265 000 000 Ft

€690 770
Údaje inzerenta

Kovács Dénes

Psaní zprávy
Zpráva musí obsahovat minimálně 10 znaků.
Popis

Přeložený text

Originální text
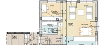
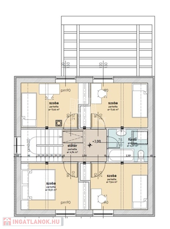
Szentendrén, kiváló lokációban, a Bükkös-patak parton eladó a fotókon látható, 2025-ös építésű, két szintes, nappali plusz 5 szobás családi ház.

A nívós építész által tervezett házat alacsony fenntartási költségek, magas minőség és nyugodt, otthonos, igazi Cosy hangulat jellemzi.

A fűtésről energiahatékony padlófűtéssel kombinált Remeha hőszivattyú, a hűtésről pedig fan coil rendszer gondoskodik. Az energia hatékonyságot ezek mellett napelem rendszer segíti és a nappaliban modern kivitelezésű hangulatos cserépkályha is található külső levegő áramoltatással.
A ház energetikai minősítése: A++ Mindenhol természetes anyagokkal, fa padlóval, tölgyfa konyhabútorral és mészkő burkolattal találkozunk.

Környék is nagyon hangulatos, a patak partján mókusok mellett sétálva, bicikli úton biciklizve indulhat a nap, miközben a közeli híres pékségbe térhetünk be friss reggeliért. A továbbiakban pedig a közeli 5*-os uszodában egy wellness élmény koronázhatja meg a napot.

Az iskolák, óvodák, gimnáziumok is ideális közelségben vannak.

Ha felkeltette érdeklődését és szeretné személyesen is látni, várom hívását a hét bármely napján és szívesen megmutatom Önnek.

Amennyiben nem rendelkezik a teljes vételárral, bankfüggetlen hitelcentrumunk minden elérhető bank és hitelintézet ajánlatát versenyezteti az Ön kedvéért, ráadásul díjmentesen. Önnek nincs más dolga, mint elbeszélgetni munkatársunkkal, aki a hallott információk alapján versenyre hívja a bankokat, hogy Ön hosszú távon is a legjobb konstrukciót kaphassa. A legjobb ajánlatokból végül Ön választhatja ki a nyertest. Munkatársaink sokéves szakmai tapasztalattal várják Önt, előre egyeztetve akár a normál munkaidő után is.

údaje Dům

115 Čtvereční metr

350 Čtvereční metr

Výborný

Rodinný dům

Cihla

Geotermický

Není zadáno

S veškerým komfortem

Novostavba

Není zadáno

1 podlaží

Není zadáno

Mapa