Dům k prodeji, Vép

Hlavní stránka » Dům k prodeji, Vép » Dům k prodeji, Vép

77 900 000 Ft

€200 623
Údaje inzerenta

Hegedűs István

Psaní zprávy
Zpráva musí obsahovat minimálně 10 znaků.
Popis

Přeložený text

Originální text
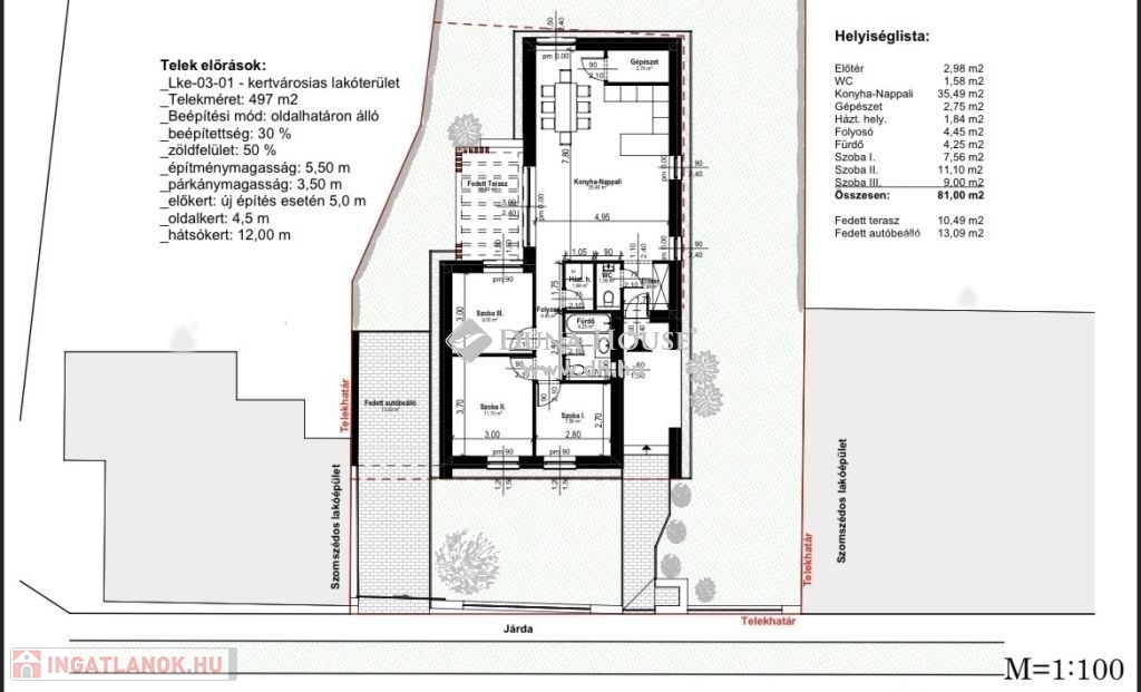
ÚJ ÉPÍTÉSŰ, MODERN, HŐSZIVATTYÚS CSALÁDI HÁZ VÉPEN!ENERGIATAKARÉKOS ( A+) nappali + 3 szobás, nettó 81 nm-es, önálló családi házat kínálunk 479 nm-es, önálló telekkel, Szombathelytől 8 km-re levő Vépen, várhatóan 2025 nyári átadással. Az ár kulcsrakészen, telek árral együtt értendő!Helyiségei:- előtér- nappali+konyha+étkező- szoba- szoba- szoba- fürdő+wc- wc- háztartási heyiség- gépészeti helyiség- közlekedő- terasz ( igény szerint. fedett)- autóbeálló ( igény szerint. fedett)Főbb jellemzői:- Igényes külső megjelenés, modern design/formaterv- Alacsony fenntarthatóság- Praktikus alaprajzokkal/, de igény szerint a belső elrendezés is még módosítható- Napfényes, nyugati tájolás- Választható belső burkolatok, szaniterek, ajtók- elektromos kapu előkészítés- elektromos redőny előkészítésFőbb műszaki paraméterek:FALAZATOK:− 30 N+F teherhordó falTETŐ:− tetőszerkezet fenyőből, favédelemmel ellátva− korcolt lemez fedés− 30 cm vastag szigetelésÉPÜLETGÉPÉSZET:− hőszivattyú, padlófűtés: − 1 db hütő-fütő klíma: igen Hisense Energy Pro Plus 3,5 kW A+++ telefonról vezérelhető okosklíma- villanyhálózat: három fázis + H - tarifás mérő óraKÜLSŐ NYÍLÁSZÁRÓK:− fehér/antracit színű műanyag nyílászáró 5 kamrás profilból, 3 rétegű üvegezéssel: − bejárati ajtó antracit színben, több pontos biztonsági zárralHOMLOKZAT:− 15 cm vastagságú EPS polisztirol hőszigetelésCsaládi Otthonteremtési Kedvezmény + Hitel igényelhető!Falusi CSOK is igénybevehető!Naprakész információk a Duna House irodákban!Műszaki leírás, bővebb tájékoztatás Nálunk!További információkért, fotókért és a megtekintés miatt kérem, hívjon vagy küldjön e-mailt!És ne feledje, vevőinknek minden szolgáltatásunk INGYENES!

údaje Dům

81 Čtvereční metr

479 Čtvereční metr

Průměrný

Rodinný dům

Cihla

Elektřina

Není zadáno

S veškerým komfortem

Novostavba

Není zadáno

Přízemní

Není zadáno

Mapa