Kancelář k prodeji, Budapešť XI obvod

Hlavní stránka » Kancelář k prodeji, Budapešť XI obvod » Kancelář k prodeji, Budapešť XI obvod

79 900 000 Ft

€205 774
Údaje inzerenta

Agatity Roland

Psaní zprávy
Zpráva musí obsahovat minimálně 10 znaků.
Popis

Přeložený text

Originální text
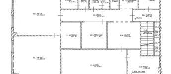
Budapest XI. kerület, Albertfalván, a budafoki út közelében, ipari területen lévő 192 m2-es felújított irodahelyiség 1/2 tulajdonjoga eladó!
Az ingatlan rendezett jogi háttérrel (társasház önálló helyrajzi számú irodákkal, saját mérők), délkeleti tájolással és saját parkolóval rendelkezik. Elsőrendű autós és teherautós közlekedési kapcsolat. 2020-ban felújításon esett át (vezetékek, burkolatok, nyílászárók, beépített konyha) riasztóval és valamennyi helyisége klímával van felszerelve. Közlekedési szempontból az iroda páratlan lehetőségeket nyújt. Az MO körgyűrű csomópontja mindössze 2 km-re, a 6-os főút 1000 méterre található, míg az M1 és M7 közös bevezető szakasza 5 km-re helyezkedik el. A Rákóczi híd budai hídfője 3 km-re van, és a repülőtér autóval 50 perc alatt elérhető. A közlekedés még egyszerűbbé válik, hiszen a 33,133E buszok az épület előtt állnak meg, míg további busz- és villamosjáratok mindössze 5-10 perces sétával elérhetők.

údaje Kancelář

Není zadáno

Kancelář

96 Čtvereční metr

Není zadáno

Není zadáno

Mapa