Průmyslová nemovitost k prodeji, Mocsa

Hlavní stránka » Průmyslová nemovitost k prodeji, Mocsa » Průmyslová nemovitost k prodeji, Mocsa

460 000 000 Ft

€1 198 291
Údaje inzerenta

Szabó Szilvia

Psaní zprávy
Zpráva musí obsahovat minimálně 10 znaků.
Popis

Přeložený text

Originální text
ELADÓ HOTEL AZ M1-ES AUTÓPÁLYA MELLETT

Egy ritka lehetőség került piacra: eladó egy működő, jól bejáratott hotel, közvetlenül az M1-es autópálya mellett. A hely, ahol nap mint nap megállnak az utazók, a kamionosok, a családok, ahol mindig van élet, forgalom és történés.

KÜLÖNLEGES ÉPÜLET, EGYEDI HANGULAT
A hotel különlegessége, hogy két jellegzetes, karakteres épületből áll:
- egy fa szerkezetű, nagy belmagasságú, Makovecz Imre által tervezett épületből (165 m²)
- mellette az 1993-ban téglából épült főépületből, 4 szinten (784 m²)

ÖSSZES HASZNOS ALAPTERÜLET≈ 949 m²
Telek területe: 1058 m²
(Az épüle tek külön hrsz-al rendelkekeznek magánszemély tulajdonú, az alatta fekvő földterület a Magyar Állam tulajdona, amiért évente használati díjat kell fizetni.)

1) MAKOVECZ IMRE ÁLTAL TERVEZETTFÁBÓL KÉSZÜLT ÉPÜLET (épült 1983-ban)
- Fa szerkezetű, nagy belmagasságú
- Egyedi építészeti érték
- Alapterület: 165 m²

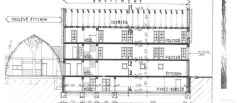
2) SZÁLLODAI TÉGLA FŐÉPÜLET – BŐVÍTÉS (épült 1993-ban)
- Pinceszint: 212 m²
- Földszint: 206 m²
- 1. emelet: 194 m²
- Tetőtér: 172 m²
Összesen: 784 m²

HOTEL KAPACITÁS
- 24 db szoba, saját fürdő
- 2 szinten, 2–3 ágyas kialakítás
- Teljes berendezéssel együtt eladó

VENDÉGTEREK, LEHETŐSÉGEK
-A Makovecz-épület remek alapot adnak étteremnek, kávézónak, borbárnak, közösségi térnek.
-A hotel vendéglátótere pedig egy gyors, meleg ételeket kínáló étteremnek, ahol az átutazók meg tudnak állni enni, kávézni, vagy csak kicsit pihenni a hosszú út közben.
A koncepció egyszerű és működőképes:
jó minőségű ételek, gyors kiszolgálás, tiszta környezet – nem benzinkúti élmény, hanem egy valódi megállóhely, ahol jól esik megpihenni.
A szobák pedig lehetőséget adnak arra, hogy az úton lévők egy hosszabb megállót is beiktassanak, akár egy éjszakára, akár csak pár órára.
Ez különösen értékessé teszi a helyet fuvarozóknak, külföldi munkásoknak, átutazóknak, akiknek kényelmes, könnyen elérhető szállásra van szükségük.
A vendéglátás és a szállás együtt egy olyan, logikus szolgáltatáscsomagot ad, amelyre mindig lesz igény, amíg az emberek utaznak ezen az útvonalon.

MŰSZAKI ADATOK
- Szerkezet: tégla + fa
- Fűtés: fatüzelésű kazán
- Szennyvíz: emésztő
- Állapot: karbantartott, részben felújítandó

MIÉRT JÓ BEFEKTETÉS?
- szezonban és ünnepnapokon teltház
- stabil, folyamatos kereslet
- magas átmenőforgalom
- gyors, kiszámítható megtérülési modell

FEJLESZTÉSI LEHETŐSÉGEK
Az M1-es autópálya ezen szakasza jelentős fejlesztés előtt áll 2027-ig:
- parkoló felújítás,parkosítás
- kamionos parkolókialakítása
- zöldterületek, fedett beállók, játszótér

BEFEKTETÉSI POTENCIÁL
Kisebb ráfordítással:
- modernebb szobák
- egységes arculat
- erős online jelenlét
- dinamikus árképzés
így magasabb kihasználtság, magasabb bevétel érhető el.

JOGI HELYZET
Az ingatlan épületei eladók, a terület, amelyen állnak, magyar állami tulajdon, és a használatára bérleti díj fizetendő.
Ez teljesen megszokott konstrukció az autópálya melletti szállások és vendéglátóegységek esetében, a nagy szereplők (benzinkutak, hotelek, étteremláncok) is így működnek.
ÁR
460 000 000 Ft
Komplett berendezéssel, működő üzemmel együtt

ÖSSZEGEZVE
Ez egy stabil, kiszámítható, működő, fejleszthető autópálya-hotel magas forgalommal és biztos kereslettel.
Ideális: befektetőknek, szállodaüzemeltetőknek, hálózatoknak, tranzit- vagy munkásszállás koncepcióhoz.
Ha az ingatlan felkeltette az érdeklődését, egyeztessünk egy időpontot a helyszíni bejárásra.
Irodánk teljes körű jogi háttérrel és szerződéskészítéssel áll rendelkezésre, így a folyamatot szakszerűen, gördülékenyen bonyolítjuk le.

Érdeklődni:
Szabó Szilvia
+36 70 367 7636

údaje Průmyslová nemovitost

Průměrný

Jiný

Není zadáno

949 Čtvereční metr

Není zadáno